


物件情報
物件名:袖ケ浦市袖ケ浦駅前1丁目 中古戸建
金額:4,300万円 【価格改定】
備考欄:令和4年10月築、築浅物件!袖ケ浦駅まで徒歩5分の好立地!周辺環境良好♪
土間付き、LDK20帖超、WIC。教育施設徒歩圏内で子育てしやすい立地!
近隣商業施設充実!ゆりまち袖ケ浦駅前モール徒歩5分♪南西向き陽当り良好♪




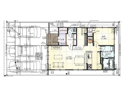
物件名:袖ケ浦市袖ケ浦駅前1丁目 中古戸建
金額:4,300万円 【価格改定】
備考欄:令和4年10月築、築浅物件!袖ケ浦駅まで徒歩5分の好立地!周辺環境良好♪
土間付き、LDK20帖超、WIC。教育施設徒歩圏内で子育てしやすい立地!
近隣商業施設充実!ゆりまち袖ケ浦駅前モール徒歩5分♪南西向き陽当り良好♪